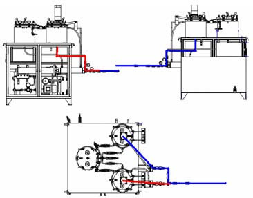
一、需要加热保温的管道
1)加热段1:
储胶罐1出胶单向阀——注射泵1进胶口——注射泵1端盖(半圈)—注射泵1出胶单向阀——静态混合器——烘箱口。
2) 加热段2:
储胶罐2出胶单向阀——注射泵2进胶口——注射泵2端盖(半圈)——注射泵2出胶单向阀。
3)加热段3:
使用压缩空气注射时的软管。

需要加热的管道
二、控制方案

1)当使用注射泵2单独注射树脂时
电伴热带温控器1控制加热段2的温度, 电伴热带温控器2控制电伴热带3的温度。
2)当使用双泵注射树脂时
电伴热带温控器1控制加热段2的温度,电伴热带温控器2控制电伴热带2的温度。
3)当使用压缩空气注射树脂时
将电伴热带温控器1设置小于室温,电伴热带温控器2控制电伴热带3的温度。
注:加热段2和加热段3之间的切换由工业插头及航空插头完成。
三、电伴热带、铝箔、保温材料缠绕方案
1、先在管子上缠绕二层铝箔,注意在缠绕的过程中不要出现局部少缠,或者局部多缠。

2、 电伴热带段1、加热段2顺着管子布置,不要让其缠绕,另在注射泵端盖上缠绕半圈,如下图所示:

而加热段3,由于电伴热带长度大于需要加热的管子,随意按照长度比例螺旋缠绕。
注意:不要过小的弯曲电伴热带,以免电伴热带内的加热丝折断或者减少电伴热带的寿命。
3、在靠近电伴热带的地方用铝胶带布置好温度传感器,注意距离电伴热带有5mm左右的距离,
4、在电伴热带上,顺着管子外径缠绕两层铝箔,在单项阀、静态混合器、注射泵端盖上可缠3层。
5、然后缠绕陶瓷纤维毡,注意将陶瓷纤维毡裁成150mm~200mm的条状,以方便缠绕,用有编织层的铝箔胶带将其固定。
6、在最外层缠绕玻璃纤维布。
7、由于加热段3是四根500mm长的管子连接而成,当用泵2注射的时候,只是用三段,电伴热带也只缠绕1800mm;当用压缩空气注射的时候,使用四段管子, 电伴热带全部缠绕。 |